A home renovation is a popular way to gain extra living space, improve quality of life and add value to your property. This can all be achieved without having the cost and disruption of moving! Once you have made the decision to make a home...
Read More
kitchen trends Tag
See more articles by
Declan Stewart
A kitchen extension is one of the most transformative upgrades you can make to your home. It not only enhances functionality but also creates a vibrant space for cooking, eating and socialising. Designing a modern kitchen extension offers the chance to blend style, innovation and...
Read MoreWith the days getting shorter and darker evenings setting in, the areas of our homes that lack natural light become all the more noticeable. Since the hallway is often the first space anyone sees when they step inside, creating a warm, inviting feel is key...
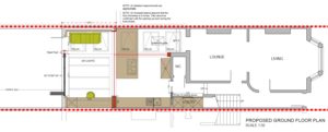
Read MoreOpen plan extensions have revolutionised modern living, transforming how we interact with and enjoy our homes. By blending kitchen, dining, and living areas into a single, open space, these extensions maximise natural light, enhance sociability, and offer a highly versatile layout that suits many lifestyles....
Read MoreThe kitchen is often considered the heart of the home, and its design continues to evolve, blending style, functionality, sustainability and the latest technology. As we look toward 2025, several exciting trends are emerging, shaping how UK homeowners will approach kitchen design. Whether you’re planning...
Read MoreDesigning a bathroom that strikes the right balance between style and functionality can feel like a challenge but with the right approach, it can also be an exciting opportunity to create a space that’s practical and beautiful. Whether you’re working with a small family bathroom...
Read MoreConverting a loft is one of the most efficient ways to maximise your living space and add value to your home. Whether you’re after a new bedroom, home office or simply a cosy nook, a loft conversion can transform an underutilised area into something spectacular....
Read MoreBiophilic design has become increasingly popular in recent years as more of us seek to connect with nature. The trend is fuelled by several factors, like our rapid technological growth, a greater focus on sustainability and a deeper understanding of how being in nature benefits...
Read MoreWhat’s trending in the world of architecture and design? This season, it’s all about embracing sustainability, creating innovative designs and building versatile living spaces. From eco-friendly materials to smart home technology, homeowners are transforming their spaces to be both stylish and functional. Whether you’re planning a...
Read MoreMany homeowners are looking for ways to add much-needed space to their homes without moving to a bigger property. If this sounds like you, a side return extension might be what you need. Side return extensions are one of the most popular options for homeowners...
Read MoreWe're excited to share with you our rear extension project on East Dulwich Grove. Showcasing our expertise in transforming a modest single-bedroom flat into a spacious two-bedroom, complete with an open-plan kitchen, dining, and living area. This project showcases how a well-planned rear extension can transform...
Read MoreAre you considering extending your home but need help finding inspiration for the design? Then look no further! With so many inspiring sources, you can take inspiration from various places and create an extension to suit your needs and style perfectly. In this article, we'll...
Read MoreWhen it comes to building an extension, there are a lot of moving parts to consider. With so many details to think about, it's easy to overlook necessary steps that can make a big difference to the end result. In this article, we'll cover some...
Read MoreIf you're considering adding an extension to your home, you're not alone! Home extensions are becoming an increasingly popular alternative to gaining extra living space without moving to a new property. An extension can give the ideal solution for a larger kitchen, a home office,...
Read MoreBathrooms have become more than just a functional space in our homes; they are now a sanctuary for self-care, relaxation, and rejuvenation. With the latest bathroom trends for 2023, you can elevate your space and create a spa-like oasis at home. From pastel colours and...
Read MoreIf you are looking to give your home a fresh new look and add some extra space, a home extension is the perfect solution! But don't settle for just any ordinary extension; design a space that serves its purpose and leaves a lasting impression. That's...
Read More2023 is bringing exciting new trends to the world of interior design. From natural, earthy tones, textured fabrics, and curved shapes to vintage and moody rooms, there's something for everyone. So, whether you're looking for ways to create a cosy and inviting space or want...
Read MoreCovid-19 has had a major impact on every industry across the globe, design being one....
Read MoreWhen we look at the residential designs in UK, we often come across Victorian houses with similar aesthetics. But some of our clients often ask us, how do we make our house stand out from the rest? Well if you are one of them, I...
Read MoreOver 15 years of kitchen design, we have seen changes across the materials used with different styles being adopted, unique furniture, fixtures and fittings choices and with trends coming in and out of popularity with our customers. Despite this constant change, we have found that...
Read MoreWe are often in a dilemma as to how to make our living spaces blend in well with the outdoors. Especially near the arrival of warmer weather, we all look for ways to spend more time outdoors. So how do we make these defined spaces...
Read MoreUpcycling is a form of recycling, where instead turning waste materials into new materials, you can update an existing product that you were otherwise planning to get rid of. While both, upcycling and recycling reduce the amount of junk that goes into your landfill, and...
Read MoreSmart homes are not only a luxury anymore, it is beginning to be the new normal, considering the kind of lifestyle we have now-a-days. If you are considering renovating your home, consider being ‘smart’ about it. Smart homes are a result of technological advances. It is...
Read MoreWe often struggle to identify what type of furniture is better suited for our space and how big is too big. Should you add a 6-seater dining table or an 8-seater? Should you go for a kitchen island or a kitchen peninsula? Should you have...
Read Moreesthetic appeal, indoor plants are beneficial in terms of removing toxins from air and purifying the air we breathe, and for our body and mind. They energise our mind and encourage deep sleep in some cases....
Read MoreLiving in bigger cities comes with the odd side of compact living. But compact living should not always mean downscaling. You can make smart choices and utilize every square meter of your space to create a better living solution for yourself. refer to the following...
Read MoreA living room is that space in a house where the whole family tends to get together for a chat and talk about how their day went, or even to relax after a long and tiring day. It is this space where you will have...
Read MoreOften the space under the staircase is underutilised, storing old musty items to forgotten and unused. However, that area can easily be transformed and utilised in various different ways - not only storage. Hidden bulky appliances One useful idea for under stair storage is to relocate the washer...
Read MoreThe addition of colour into the home adds a sense of individuality and purpose. Transforming an empty shell of a home into your own personal retreat. Each room and space having its individual touch of colour. The typical palette is broken down into two main...
Read MoreLiving in London means making every square meter of your space count. With the increase in each square meter causing a hole in your pocket, here are some ideas to get creative with your tinier floor plans. Declutter Declutter in order to make creative changes and make...
Read MoreIn this blog we discuss the best lighting for your kitchen. The kitchen is the heart of the home and is a space used by the entire family. Whether it be cooking, preparing food, doing homework or family bonding, the kitchen is one of the...
Read MoreInterior designing can be compared to pouring a reflection of your personality in your space. Each design, colour or pattern creates a certain mood in the space it occupies, giving a certain feeling to its onlooker. When it comes to designing the interiors of our...
Read MoreThinking about adding some downlights in your kitchen extensions and loft conversions? Take a read of Build Team's latest blog to learn more about the different options available. What are they? Downlights are small, circular, ceiling-recessed LED lights. They are a popular choice all over...
Read MoreThere are myriad possibilities when choosing flooring options in kitchen extensions - who knew? So trying to make the decision may be a little trickier than you first thought. Hopefully, this will help you navigate the sea of flooring choices out there, and enable you to...
Read MoreChimney breasts were once a significant feature in traditional homes, built with functionality in mind, they housed an open fire and chimney flue to keep residents warm in the colder months. Found in almost every room in the house before central heating systems were created, they are a significant...
Read MoreIf you are planning a home extension or remodel, creating office and living space for home working is essential now, more than ever. Space to work and learn is most likely high on the agenda. Here are some of the ways you can add additional...
Read MoreAt the start of the year when up and down the country we began to decant our offices and begin to work from home, most of us assumed it was going to be short term and it’s safe to say many of us were not...
Read MoreWill you choose radiators or underfloor heating? How you will heat your home is a key question to consider during the design of your new extension as it can effect the kitchen layout and placement of furniture. You will want to know what the best...
Read MoreGreenery naturally makes us happy, plants relax us not only by how beautiful they look but also by spreading pleasant scents around our homes and purifying the air we breathe. This could be the reason that the UK has seen a ‘growth’ in house plant...
Read MoreAs we get closer to the new decade you can expect that the next few months are going to bring a wave of new trends with it. However, the trends of late 2019 and 2020 are looking surprisingly familiar to those who grew up in...
Read MoreChimney breasts are typically found in old homes, projecting from the wall to accommodate fireplace to keep the occupants warm during the winter season. At the bottom of the chimney is the fireplace where a fire would be lit. Heat produced by the fire spreads...
Read MoreMost homes in the UK tend to have a chimney stack- originally created to release smoke from the fire place. As homes have developed, so have chimney breasts. More people are opting to remove their unused chimney breast or even the entire stack altogether in...
Read MoreWith the turn of a new year, comes the opportunity to re-fresh your house with up to date decorating patterns, timeless furniture and stylish interior fittings. 2019 is going to be a fantastic year for interior design and our Architectural Designers have put together a list...
Read MoreThe home should be a place of relaxation and comfort and we believe that adopting the Danish approach of hygge is a great starting point to think about how to interior design your home and extension. The Danish adopt hygge as a means of creating a...
Read MoreWhy not get ready for Hallowe'en? It is that time of year again - summer has come to an end, and those chilly winter days are fast approaching. Hallowe'en is right around the corner. Festive occasions make many homeowners wish they had more space. This...
Read MoreWhat is the best companion to a new extensions? Interior décor that lets it live up to its full potential! This year has been full of very strong interior design tends, so we selected a few of our favourite trends that work hand in hand...
Read MoreChoosing floors to last a lifetime can be a sensible investment. If you are undertaking a home extension, it is a fantastic time to refurbish other parts of the home. Floor finishes are a massive eye-catcher, and can really impact the way a space looks...
Read MoreNothing completes a family like a furry friend. Whether you’re a dog or a cat person, there are always considerations to think about before starting on designing your home extension, especially in relation to how the family is going to adapt to the process and...
Read MoreUtility areas are becoming more and more popular within our home extension designs, as modern interior design is becoming sleeker and more clutter free. A utility area provides the perfect place to hide away unsightly items. Washing machines may look a lot better than they...
Read MorePrivacy within the home is paramount and isn’t something you would necessarily consider when designing a home extension. Our clients are often keen to add lots of glass and glazing, but it’s important you keep in mind the repercussions of doing so. London in particular...
Read MoreOne of the most exciting parts of your Design & Build journey will be choosing all of the materials and styles for your new space – from the colour of your walls to your new floor, there are thousands of choices at your disposal to...
Read MoreIf you’re thinking about extending your kitchen, open plan living is ideal as you will be left with a generous room size that can be very multifunctional. Open plan living needs to be well thought out, as you don’t want to lose that much loved...
Read MoreWe often get asked by prospective clients how much does an extension actually cost, and our answer is always the same; the cost is dependent on the size and the design of the scheme. If you find yourself going for a large scheme and you...
Read MoreA white base interior can brighten up a room, and create the illusion of more space. If you’re keen on a neutral colour scheme, this kind of design can be a fantastic start, and it remains extremely flexible and versatile throughout the decorating process. So what...
Read MoreUtility areas are great if you want to create a room to hide all of your clutter and unsightly items. Washing machines, tumble dryers and ironing boards require space and are generally awkward to hide away. You can hide them away in your kitchen, although...
Read MoreYour choice of flooring will completely transform how your home will look. It requires a fair bit of thought as it often takes third place in the expense scale: the first being the shell of the extension, the second is typically your kitchen, and the...
Read MoreSummer feels like it is here at last and with it comes a host of new ideas for colour schemes within your home! Centred on sombre pastels and water colour palettes, these light touches of colour can revitalise any drab Winter-themed room and bring in...
Read MoreThinking about saving money and using radiators to heat your extension? Under floor heating may not be as expensive as you might think. Upgrading to under floor heating frees up your wall space, gives you toasty toes and in the long run may save you...
Read MoreExtractor Fans We are frequently asked whether extractor fans are a necessity – as they are often large and bulky and don’t have an aesthetically pleasing appearance. The answer is yes and your Building Control Officer will be looking out for your extractor fan. It’s not...
Read MoreChimney breasts were once a significant feature in traditional housing design. They were built with functionality in mind; to keep residents warm in the winter months by offering the opportunity to have a real fire. As central heating systems have become more efficient, the requirement...
Read MoreDesigning an extension offers the perfect opportunity to incorporate features that you’ve always loved. Exposing brick walls in your home can instantly change the style and atmosphere of the room. The popularity of these walls have sky rocketed in the past few months, and it’s...
Read MoreHaving a WC on your ground floor is not only convenient, but it can increase your property value by about £10,000. One question that our clients frequently ask is how they can incorporate a WC into their design, without detracting from the extended space. The...
Read MoreStorage is often overlooked as it’s not something which is particularly exciting during the Design process. While it’s not that exciting, it is extremely practical and deserves some thought when you’re thinking about the layout of your room. You have lots of options when it comes...
Read MoreWhen you’re designing your Extension, it’s important to think about what you want to gain from the space. This will vary depending on your day to day lifestyle; however one factor that repeatedly arises with all of our clients is Light. When we say light,...
Read MoreThere are two important design considerations that we encourage all of our clients to think about during the Design Process. The first is the obvious one; the ‘shell’, which is anything to do with the structure of the extension (ie. windows / doors / chimney...
Read MoreWhen we begin the Design Phase with our clients, there are all kinds of requests made in respect to the Design. No two designs are the same, and they all vary to fit in with the day to day lifestyles of the homeowner. There does...
Read MoreFor most of us, Design is at the forefront of our minds and we initially think about how something is going to look, and we forget about functionality. Underfloor heating is, in particular, important to think about early on because it effectiveness can vary depending...
Read MoreLight can make or break a room and it’s really important to find the right balance between natural and artificial light. The best way to do this is to really understand what light you are going to gain from your chosen design. Lots of our...
Read MoreWhen designing your kitchen extension, you should ask yourself this question: How do I want the space to look when it’s finished? The answer to this question requires some thought about your interior design. Many people associate ‘interior design’ with a bit of paint or some...
Read MoreAn open plan design is a great way to create a large multi-functional space and it’s an obvious favourite for our past and current clients. Not only does this design option utilise all of the space available, but it also encourages the flow of natural...
Read MoreExposed brick is a rising star among interior decoration – with our last two builds, and an on-going build incorporating it into their design. When designing your kitchen extension, it is key to consider your interior space and what look you want to create. What is...
Read MoreAdding a utility space is a great way to abolish clutter and unsightly items from your living space. It’s also a fantastic solution as it makes use of the space towards the back of the kitchen area that usually struggles to find a strong source...
Read MoreFloor finishes are a massive eye catcher and can really impact the way a space looks and feels so it’s really important that you do your research here!...
Read MoreWhen thinking about light, it’s important to think about the best way to take advantage of natural light, but also the best way to use artificial light to complement your new space....
Read MoreWhen planning the kitchen for your Side Return Extension one consideration is which worktop to specify. What constitutes the ‘best’ in kitchen worktops is relative and is often a question many of our clients ask....
Read MoreWhen it comes to choosing the material for the floor of your side return extension, there are many factors you should take into consideration....
Read MoreMany of our clients ask us how we can construct a side return extension and still keep the character of their Victorian house. This project in Chiswick is a good example. We incorporated a Victorian style bay window with doors leading out to the back...
Read MoreDo you have a drink problem? Sorry, let me rephrase that. Do you have a problem where to store your wine collection due to a lack of space in the house? ...
Read MoreWhen designing your new side return extension, give some thought to heating and privacy. There are many options for both issues - here are some: HEATING To keep the new extra space nice and snug, you will need to add additional heating to that area. Yes you...
Read More
