Designing a home extension is not just about gaining extra space. A house extension is also about maximising return on investment, improving energy performance and creating a home that will remain functional, flexible and efficient for many years to come. The architect you choose for your...
Read More
conversion Tag
See more articles by
Phoebe Shannon
Design a London annex with privacy, accessibility and smart planning for flexible multi-generational living under one roof that adapts over time....
Read MoreAn increasing number of people are now choosing to extend their current properties rather than move house. This is definitely the quickest and cheapest solution to meeting the changing needs of the family. Building an extension can be an exciting project and the ideal way...
Read MoreAre you planning an extension or conversion for your home in 2025? You are not alone! Many homeowners are finding it is the cheaper and more practical option than moving. The key to the success of your building project is getting an accurate and realistic quote...
Read MoreHiring a good and reliable builder makes the difference between a smooth and rewarding build project to a challenging and stressful one - which takes longer to complete and costs much more. Which builder you hire is the most important decision you will make when...
Read MoreUndertaking a home extension project is exciting, but before work begins, it is essential to check if planning permission is required. Most building adaptations and extensions require approval by the local planning authority. With careful research and preparations, most planning applications are successful, but refusals...
Read MoreObtaining planning permission is a key requirement for any building project. If you are planning to extend your home, you may well need planning permission for the building work. It is essential to obtain planning permission from your local planning authority before work begins. Different authorities...
Read MoreMany home-owners find that they have a conservatory attached to their home which they do not fully use as it has become a convenient bike store or a good place to dry washing! Replacing an existing conservatory with a new extension is becoming an increasingly popular...
Read MoreHome improvements can be an excellent way to increase the value of your property, whether you are looking to sell your home or merely increase its market value. However, determining which enhancements will provide the most value can be challenging. In this article, we will...
Read MoreChimney breasts were once a significant feature in traditional homes, built with functionality in mind, they housed an open fire and chimney flue to keep residents warm in the colder months. Found in almost every room in the house before central heating systems were created, they are a significant...
Read MoreThere are a number of different planning applications, each of which will suit different residential extension designs. Discussed below are 7 different treatments for common extensions or alterations to residential properties. Permitted Development Arguably the most straightforward extension type would be that which falls within your...
Read MoreHave you considered how our project might affect the condition with your neighbours? When proposing an extension it is likely you would be required to serve a Party Wall notices to adjoining neighbours. A party wall notice is a notice of proposed works in relation to a particular...
Read MoreThere are a number of different planning applications, each of which will suit different residential extension designs. Discussed below are 7 different treatments for common extensions or alterations for residential properties. Permitted Development Arguably the most straightforward extension type would be that which falls within your permitted development rights. Typical...
Read MorePlanning Permission is confusing, as precedent and policy vary borough to borough. Policy is also frequently updated, so staying on-top of the latest changes can be challenging, especially if you’re not used to working with local councils day to day. On top of this, there...
Read MoreThe year of 2017 has been a year of celebration for the Build Team Group. The year kicked off our tenth year anniversary, and we are very proud to say that for over a decade we have helped homeowners across London transform their homes. The year...
Read MoreWe often have clients who want to start the build as soon as possible. Whether you’re counting down the days to a due date, or perhaps you want to finish your kitchen in time for Christmas, or you might be renting another property until the...
Read MorePlanning Permission – everybody needs it, but no one knows much about it. We’re going to break everything down for you. If you are planning to do an extension, the chances are, you will require permission from your local council, be that through Permitted Development of...
Read MoreLiving in a conservation area is a pretty special experience; the architecture in the area has been preserved and the character maintained for future generations. Of course, this has implications when it comes to home renovations, particularly to extensions and particular features. You can contact...
Read MoreBuilding Control is a collection of guidelines designed to maintain your safety when extending your home. During the build process, this typically involves four site visits: the first visit when the foundations are being laid, the second when the cavity wall is erected, the third...
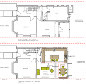
Read MoreExisting & Proposed Design Extensions are a fantastic opportunity to add lots of contemporary, functional features to your home such as bi-fold doors and Velux windows. These features have been developed with practicality in mind and they do a fantastic job at letting lots of natural...
Read MoreLofts conversions are a fantastic way to gain some much needed space as they are usually very generous in the floor area that they add. Our Design Team have loads of design solutions but they are subject to a properties specific characteristics and local planning...
Read MoreIn a city where space is so valuable, it isn’t surprising that extending is becoming a popular alternative to moving. You wouldn’t believe the amount of space you can add to your home through extensions – and digging down to create a useable basement or...
Read MoreWhether you intend to go large and invest in a lower ground floor, or keep it simple and go for a cellar conversion; there are loads of ways you can use this underground space. We thought we would share just some of the ideas and...
Read MoreCeiling height was the hot topic of discussion at our most recent House Tour, and it’s certainly something we spend lots of time on during the Design Phase. There are loads of questions to answer on this topic, so we thought we’re run through the...
Read MoreOur Design Team have recently obtained planning permission for a fantastic, three story extension in a conservation area in Lambeth. The additional space will add a massive 60SQ to the home, and will completely transform the property....
Read MoreWhen you are designing your extension, it is important that you find a design that is perfect for you, but that also satisfies your local council’s guidelines and neighbouring properties....
Read MoreThere are several types of application that you can submit to your local council. Our Design Team have tons of experience in submitting planning applications, and they’ll be able to best advise which is most appropriate for your scheme. Depending on the size and character of...
Read Morehen it comes to designing your home extension, your local council will influence your design as they do have the final say on whether it’s allowed. For this reason, it is certainly useful to have someone who knows what those guidelines are....
Read MoreAmendments that fall within a certain criteria can be made to your property under Permitted Development; this means you don’t need to apply for full planning permission. While Permitted Development (PD) can be applied to most properties, it does not apply to flats, maisonettes or...
Read MoreParty Wall Consent is a legal requirement that has been in place since 1996.This law was designed to regulate building works whilst also protecting adjoining owners and occupiers during building projects. It is a separate requirement to Planning Permission and one does not have an...
Read MoreWe are frequently approached by prospective clients who query whether living in a conservation area will affect their planning application. The short answer is yes it does (a bit). All planning applications have to be submitted with restrictions in mind and being in a conservation...
Read MoreThere is a lot of confusion surrounding the mysterious and complex process that is Party Wall. Often clients are unsure or misunderstand what is expected of them with regards to notifying their neighbours of impending building work. We are frequently asked whether neighbours can actually...
Read MoreThis project is a great example of a clever solution to overcome the Lambeth SPD policy on wraparound extensions....
Read MoreWe are regularly contacted by prospective clients who are looking to purchase a property that has the potential for an extension. Whether you are a first time buyer or a current homeowner; it is beneficial to discuss the feasibility of an extension prior to committing...
Read MoreA question we are frequently asked by clients is whether they can build their side return extension under Permitted Development, rather than submitting a full Planning Application....
Read MoreDuring the Design stage, clients are likely to benefit in regards to planning and party wall matters. Clients can benefit from a joint planning application, and many London boroughs are more willing to be slightly more flexible with the wall height astride the boundary....
Read MoreOnce you decide to undertake a side return extension project, one of the factors you will need to consider is whether any of the building work is being carried out near to a sewer. If you are planning to build over or close to a...
Read MoreA common question we are asked is whether being in a conversation area will prohibit the design and build of a property. A conservation area exists to protect the special architectural and historic interest of a place. ...
Read MoreThere has never been a better time to convert a loft space and build a Side Return Extension at the same time. At Build Team, we routinely get asked to undertake Loft Conversions as part of a client’s Side Return plans. Our clients are typically...
Read MoreThere are a number of good reasons to collaborate with your neighbour when it comes to the Design and Build of a Side Return Extension and at Build Team we have developed a specialist knowledge base on how best to approach these projects....
Read MoreSometimes you don’t need to add a large space to create a big impact on the layout of your home. A modest but well-designed extension can be transformative, changing the aspect of a room, bringing in valuable extra daylight, linking two existing spaces, or improving circulation...
Read MoreFollowing on from our recent blog post, Side Return Extensions for Flats, we have received many enquiries. Many of you want to know how to go about getting your Landlord's consent. Whilst we can't promise you will get the answer you want, here are some...
Read MoreFor most clients with a flat the primary reason for building a Side Return Extension is to convert their one bed into a two bed. Whether you need more space but can't afford to move, or want to sell your flat on, it makes sense...
Read MoreNeighbours can be tricky, especially if you’re trying to make some home improvements. Whether they have had some bad experiences before or have heard horror stories from friends there are ways around this. At Build Team we try and minimise the effect building your side-return will have...
Read More
