A significant number of house owners are opting to renovate or extend their homes, rather than move. According to the TSB, two in five owners are choosing to improve their homes, rather than relocate. They are being influenced by such factors as high mortgage rates...
Read More
schedules of condition Tag
See more articles by
Phoebe Shannon
Undertaking a home extension project is exciting, but before work begins, it is essential to check if planning permission is required. Most building adaptations and extensions require approval by the local planning authority. With careful research and preparations, most planning applications are successful, but refusals...
Read MoreObtaining planning permission is a key requirement for any building project. If you are planning to extend your home, you may well need planning permission for the building work. It is essential to obtain planning permission from your local planning authority before work begins. Different authorities...
Read MoreUsing glass for your extension is one of the most effective ways to expand your home whilst increasing the flow of natural light...
Read MoreA home renovation is a popular way to gain extra living space, improve quality of life and add value to your property. This can all be achieved without having the cost and disruption of moving! Once you have made the decision to make a home...
Read MoreWhen you are planning a house extension, there are many elements to consider. Although much emphasis is usually placed on the floor plan, the roof design is actually one of the most important considerations. The roof design you choose can completely alter the feel and...
Read MoreMany home-owners find that they have a conservatory attached to their home which they do not fully use as it has become a convenient bike store or a good place to dry washing! Replacing an existing conservatory with a new extension is becoming an increasingly popular...
Read MoreIf you’re thinking about expanding your home, you’re likely considering two main options: building up (vertical extension) or building out (horizontal extension). Both have distinct benefits, costs and considerations, so it’s important to determine which is best for your needs, property type, and lifestyle. Here...
Read MoreWhen designing a home extension, one of the most important considerations is how to maximise natural light. Natural light not only makes your space feel bigger and more inviting, but it can also have a positive effect on your wellbeing, improving your mood and even...
Read MoreDesigning a bathroom that strikes the right balance between style and functionality can feel like a challenge but with the right approach, it can also be an exciting opportunity to create a space that’s practical and beautiful. Whether you’re working with a small family bathroom...
Read MoreUpgrading your kitchen can be one of the most exciting parts of home renovation project. As the heart of the home, the kitchen is often considered the most sociable room, where meals are prepared, families gather and the most time is spent. However, transforming this...
Read MoreExtending your home can be an exciting adventure, providing you with extra space and a fresh look. But what about your garden? Enhancing your outdoor space to complement your new home addition can create a seamless transition between indoor and outdoor living, adding to the...
Read MoreWhat’s trending in the world of architecture and design? This season, it’s all about embracing sustainability, creating innovative designs and building versatile living spaces. From eco-friendly materials to smart home technology, homeowners are transforming their spaces to be both stylish and functional. Whether you’re planning a...
Read MoreMany homeowners are looking for ways to add much-needed space to their homes without moving to a bigger property. If this sounds like you, a side return extension might be what you need. Side return extensions are one of the most popular options for homeowners...
Read MoreWe're excited to share with you our rear extension project on East Dulwich Grove. Showcasing our expertise in transforming a modest single-bedroom flat into a spacious two-bedroom, complete with an open-plan kitchen, dining, and living area. This project showcases how a well-planned rear extension can transform...
Read MoreAre you considering extending your home but need help finding inspiration for the design? Then look no further! With so many inspiring sources, you can take inspiration from various places and create an extension to suit your needs and style perfectly. In this article, we'll...
Read MoreWhen embarking on an extensive renovation or building project, it's essential to establish a timeline with your builder before the building work starts. With so many decisions to be made and materials to choose from, it’s easy to forget this aspect of the project. A...
Read MoreDesigning the kitchen of your dreams is a task that requires careful consideration, particularly with multiple layouts to consider. Choosing the right layout is paramount, but selecting the perfect one for your kitchen can seem challenging. Your kitchen layout will play a pivotal role in...
Read MoreIf you're considering adding an extension to your home, you're not alone! Home extensions are becoming an increasingly popular alternative to gaining extra living space without moving to a new property. An extension can give the ideal solution for a larger kitchen, a home office,...
Read MoreBathrooms have become more than just a functional space in our homes; they are now a sanctuary for self-care, relaxation, and rejuvenation. With the latest bathroom trends for 2023, you can elevate your space and create a spa-like oasis at home. From pastel colours and...
Read MoreHome extensions can be a great way to add value and more space to your home but knowing where to begin can be challenging. The process of planning and building a home extension can feel overwhelming, but it can also be an exciting and enjoyable...
Read MoreCovid-19 has had a major impact on every industry across the globe, design being one....
Read MoreWhen we look at the residential designs in UK, we often come across Victorian houses with similar aesthetics. But some of our clients often ask us, how do we make our house stand out from the rest? Well if you are one of them, I...
Read Moregood design are plenty; as proven by the positive impact of buildings such as Maggie Centres. With the potential to improve productivity, mood, social interaction, physical and mental health; designers must continue to work on behalf of the public to optimize our collective quality of...
Read More'If all of your tools for living are well designed, you will not need much' Using minimalism to design and decorate your property can allow for optimum space whilst improving your quality of life. Minimalism in art refers to abstraction typified by simple geometry. This concept refers to...
Read MoreOver 15 years of kitchen design, we have seen changes across the materials used with different styles being adopted, unique furniture, fixtures and fittings choices and with trends coming in and out of popularity with our customers. Despite this constant change, we have found that...
Read MoreHere at Build Team, we are proud to celebrate 15 years of customer-focused design and exploring trends within kitchen extensions since 2007. Kitchen design has evolved immensely through each decade, adapting with changes in functionality and style. How to approach kitchen design has also changed alongside...
Read MoreWe often neglect spaces and restrict them to the function they serve. For example, if we have a TV, a sofa and a painting in our living room, we tend to leave it at that, thinking the space is complete. You can improve this space...
Read MoreA living room is that space in a house where the whole family tends to get together for a chat and talk about how their day went, or even to relax after a long and tiring day. It is this space where you will have...
Read MoreThe addition of colour into the home adds a sense of individuality and purpose. Transforming an empty shell of a home into your own personal retreat. Each room and space having its individual touch of colour. The typical palette is broken down into two main...
Read MoreLiving in London means making every square meter of your space count. With the increase in each square meter causing a hole in your pocket, here are some ideas to get creative with your tinier floor plans. Declutter Declutter in order to make creative changes and make...
Read MoreChimney breasts were once a significant feature in traditional homes, built with functionality in mind, they housed an open fire and chimney flue to keep residents warm in the colder months. Found in almost every room in the house before central heating systems were created, they are a significant...
Read MoreThis blog discusses boundary walls and extension design. Did you know Local Authorities have guidelines in place which dictate the maximum height your boundary wall can be? This may be different to the height of the existing fence or brick divide, so it is worth...
Read MoreIf you are planning a home extension or remodel, creating office and living space for home working is essential now, more than ever. Space to work and learn is most likely high on the agenda. Here are some of the ways you can add additional...
Read MoreAs we start the New Year we are again spending more time than usual at home, we all look forward however to the summer of 2021, a time when we hope we can come together again with large family celebrations, parties and get-together’s - we will all be...
Read MoreGround floor extension roofing options are many and various. In fact, roofing styles for ground floor extensions might not seem very exciting, but they are actually a very important design decision and will impact your overall scheme. The roof design can be influenced, and sometimes...
Read MoreA question we are often asked by prospective clients is: why design and build? What makes a design and build company a better option than the traditional model of using an architect and then contractor? There are a number of key reasons which make an...
Read MoreHow to incorporate the old and new in your extension design is so key when designing your new space. You will want to think about how this is going to interact with your existing property. As well as how you want the old and new...
Read MoreWorking from home has become the new normal and is set to continue well into the new year. With more than 44% of us no longer commuting to the office on a daily basis now is the ideal time to set up a dedicated home office. However, if...
Read MoreDuring your design phase, perfecting your extension layout is an important aspect to consider. As is the way you want to connect the new extension to your existing property. This decision will be based on a combination of your design preference, the practicality of the...
Read MoreThe importance of a utility room in a family home can sometimes be underestimated. Although it may not seem particularly important during the conceptual design process, utility rooms are becoming increasingly more popular with our clients. They are also becoming a vital part of any...
Read MoreWill you choose radiators or underfloor heating? How you will heat your home is a key question to consider during the design of your new extension as it can effect the kitchen layout and placement of furniture. You will want to know what the best...
Read MoreThe design benefits of a courtyard are plenty. Everyone dreams of having a rear garden in their home, as space to party, play or just relax. But have you ever considered creating an internal courtyard space to create a green haven within your home? Read...
Read MoreA guide to exterior cladding will help answer a commonly asked question: ‘how will my house look from the outside?’ As the ‘skin’ of your building, cladding plays an important role in the way your house looks once completed. Technically speaking, it is the installation...
Read MoreWith the start of the New Year it may be time to start thinking about the possibility of extending your home to gain more space and improve your quality of life. There are many different reasons to extend your home, a growing family, improve the flow around your...
Read MoreThe 3 most common extensions people choose link heavily to making the most of the floor area in your home. It is key in creating the most practical living space for your family. With property in London coming at a premium, it is sometimes more...
Read MoreWhat can I do with the unused room, or rear reception room, as it is more commonly known? This is certainly something to consider when designing a rear extension. The most common brief is usually to create open planning living, kitchen and dining space that...
Read MoreNew Year, New Extension project? It may be nearly mid-February, however this is the perfect time to begin the design or the build of your extension project. Creating a new space in your home is an exciting prospect and below we will discuss why now is the best time...
Read MoreThe home should be a place of relaxation and comfort and we believe that adopting the Danish approach of hygge is a great starting point to think about how to interior design your home and extension. The Danish adopt hygge as a means of creating a...
Read MoreRemember the bitter cold brought by ‘Beast from the East’? Keep warm and cosy in your home and your running costs low this winter with our neat toe-warming solutions. Much of London’s housing is characterised by gorgeous historic housing with treasured original features. There may be...
Read MoreAs your family grows, you may lean towards extending your home to provide more space. Children have curious minds and are full of energy which is fantastic, but is all the more reason for you to re-evaluate the safety of your home and new extension....
Read MoreWhy not get ready for Hallowe'en? It is that time of year again - summer has come to an end, and those chilly winter days are fast approaching. Hallowe'en is right around the corner. Festive occasions make many homeowners wish they had more space. This...
Read MoreThe housing market is an ever-changing world, with all of us looking for ways to add value to our property. Whether you are buying, selling or simply settled, adding an extension to your property is a great place to start. The most important factor to...
Read MoreWe recently gave you a summary of our latest completed projects. We are so impressed with the transformations that we thought we’d share a bit more information with you about each of the projects. We understand it can be difficult to imagine the final result,...
Read MoreWe have recently completed some wonderful new projects, which include a variety of ground floor extensions and loft extensions. Our clients are so happy with the finished product, we thought we’d give you a run through of our latest four so you can understand what...
Read MoreKitchens are no longer just spaces for cooking. They have become a space for social gatherings, a hub for day to day activities or even a place for the kids to do their homework whilst you’re whipping up dinner. You’ll need to design a layout...
Read MoreMoving home can be expensive, so this Five Reasons to Extend blog shows why it is no wonder more and more homeowners look towards home extensions. It can give them that extra bedroom, a larger bathroom or that multi-functional family kitchen. Whether you’re looking to...
Read MoreMost companies that offer a two-stage process will prioritise the build process over the architectural designs, leaving you with a design that you may not necessarily have chosen. At Build Team, we value both Design & Build equally – and we work hard to exceed...
Read MoreOne question we are frequently asked is: Will my extension look like everyone else’s? Our answer: Absolutely not! You have endless options at your disposal when it comes to doors, windows, height, roof type, and materials – and this is just the shell extension. If...
Read MoreHome extensions are often associated with growing families, but they are also a fantastic investment opportunity and don’t necessary need to revolve around you. Lots of our current clients live abroad or outside of London, and are currently extending their second homes as an investment,...
Read MoreHomeowners undertake home extensions for various different reasons, but an increase in space is usually a common cause among clients. An increasing number of our clients are approaching us to ask about the feasibility of two storey extensions, so they can gain an extra bedroom...
Read MoreWhen it comes to designing your extension there are lots of factors to consider; all of which impact the options available to you. For example, designing a home extension to a ground floor flat is very different the design for a full house. One of...
Read MoreWhen undertaking an extension, clients often find it a great excuse to carry out the bits and bobs they’ve been meaning to do for years – for example internal bathroom refurbishments, hallways refurbishments, and replacing boilers. The boiler is a great example, as it’s likely...
Read MoreOpen plan living is not for everyone, and lots of people like the traditional feel of separate rooms which hold different functions. One advantage of open plan living is the uninterrupted light, as natural light has the freedom to penetrate every corner of the room....
Read MoreSummer feels like it is here at last and with it comes a host of new ideas for colour schemes within your home! Centred on sombre pastels and water colour palettes, these light touches of colour can revitalise any drab Winter-themed room and bring in...
Read MorePerfectly Imperfect Treasure Some consider an interior exposed brick wall to be a timeless treasure, not to mention an inherently interesting feature. It has a rustic, organic character not usually found internally. Added to which, it can suit both modern and stylish projects, as well as...
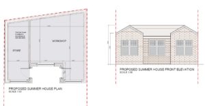
Read MoreA summer house gives you a secluded space in your garden, away from the hustle and bustle of your daily life. If you’re looking for your own private hideaway it’s the perfect accompaniment to your extension. A versatile space in your garden open to a...
Read MoreLondon has some pretty incredible views – they might not be seaside savvy or mountainous landscapes, but the city skyline is a hard one to beat. Roof terraces offer a fantastic opportunity to incorporate some sky-high views into your home; they can also be a...
Read MoreNo two extensions are the same. Trust us - we should know, having designed 500 home extensions across London over the past decade. Clients are often concerned that their extension will just be a typical, cookie cut design – but that is far from reality....
Read MoreChimney breasts were once a significant feature in traditional housing design. They were built with functionality in mind; to keep residents warm in the winter months by offering the opportunity to have a real fire. As central heating systems have become more efficient, the requirement...
Read MoreDesigning an extension offers the perfect opportunity to incorporate features that you’ve always loved. Exposing brick walls in your home can instantly change the style and atmosphere of the room. The popularity of these walls have sky rocketed in the past few months, and it’s...
Read MoreOur Design Team believe that no person is the same, so no extension should be the same. Every single design we create is different; our team create tailor made designs, wholly specific to individual client needs and specifications. There are an endless world of possibilities...
Read MoreWe find that our clients choose to extend for many different reasons - some want a dining area, others want more natural light; flats usually want an extra bedroom. One of the most common reasons is the growing demand for a larger kitchen and it’s...
Read MoreYour boundary wall height will affect your roof design, as lower boundary walls prefer a pitched roof to make the design practical. Higher boundary walls offer you more flexibility, as you’re free to choose from either a pitched or flat roof design. Making a decision on...
Read MoreCeiling height was the hot topic of discussion at our most recent House Tour, and it’s certainly something we spend lots of time on during the Design Phase. There are loads of questions to answer on this topic, so we thought we’re run through the...
Read MoreHave you ever wondered how an architect would design their house? Our Design Team work so hard at creating our clients visions; we thought we would ask some of the team to design their perfect extension. We chose the existing floorplan and specification that we use...
Read MoreOpen plan living has become popular in modern day living, particularly in homes where space is valuable. If you’re thinking about extending your kitchen, open plan living is an ideal choice because you’re likely to be left with a very generous finished room size. This...
Read MoreSummer is in the air! The sun is shining and the BBQ’s are being dusted off – so what better time to think about making the most out of your garden and kitchen? When designing an extension, we always encourage our clients to think about...
Read MoreIf you’re thinking about extending, you should think about how you want your new space to interact with your existing property....
Read MoreThe traditional ‘garage’ seems to be going out of fashion, as homeowners are realising the potential of what might otherwise be used as dead space. A typical garage spans 3 x 6 metres, which is a huge area, especially when you consider how the space...
Read MoreThe reason for extending is usually quite simple; you want more space in your home. While reasons for the additional space vary massively, we do find that lots of our clients want to accommodate their growing families....
Read MoreDepending on your design options and personal preference, you might need to find a way to get natural light through to the room that sits behind your kitchen....
Read MoreFor many of you, having the opportunity to design an extension will be the first time you are offered the opportunity to design a living space exactly around you and your lifestyle. The layout of your extension is completely yours to design and should be suited...
Read MoreAn open plan design is a great way to create a large multi-functional space and it’s an obvious favourite for our past and current clients. Not only does this design option utilise all of the space available, but it also encourages the flow of natural...
Read MoreWhen designing your extension, you need to consider how to shape your new space. The two most popular kitchen extension roof types are pitched or flat and each one offers different advantageous qualities. The type of roof also guides your options on what kind of windows you can...
Read Moref you’re planning a home extension, it’s safe to say that space is at the forefront of your objective. It is important to seek professional advice from your designer and think carefully about your design to ensure that your new space meets your requirements and...
Read MoreA cellar conversion is one way to make use of a redundant space you may have available; turning it into something which can be useful and improve the practicality of your home....
Read MoreA great way to increase space and add value to your home is to build up with a loft conversion or outwards with a side return....
Read MoreThere has never been a better time to convert a loft space and build a Side Return Extension at the same time. At Build Team, we routinely get asked to undertake Loft Conversions as part of a client’s Side Return plans. Our clients are typically...
Read More
